1.產品概述:
LW34-40.5型戶外高壓六氟化硫路器是三相交流50赫茲的戶外高壓電氣設備;適用于40.5kV輸配電系統(tǒng)的控制和保護;也可用于聯(lián)絡斷路器及開合電容器組的場合;并可內附電流互感器供測量與保護用。LW34-40.5型斷路器配用CT14型彈簧操動機構。斷路器符合國家標準GB1984-1989《交流高壓斷路器》和國際電工委員會標準IEC60056:1987《高壓交流斷路器》的要求。斷路器的主要特點:開斷性能優(yōu)良,采用壓氣式滅弧室,燃弧時間短,電壽命長,在額定電壓下連續(xù)開斷25千安20次不檢修,不更換六氟化硫氣體;絕緣可靠,氣壓在零表壓時可耐受40.5KV10分鐘;機械可靠性高,合閘能力強,能頻繁操作;開合電容器組電流400安無重燃;切空長線25、50公里無重燃;結構簡單、體積小,不檢修周期長。40.5KV-126KV六氟化硫斷路器,佳吉電氣專業(yè)生產。
2.使用環(huán)境條件:
海拔高度:不超過2500;米;
高原型4000米;
環(huán)境溫度:-30℃—+40℃(特殊要求-40℃—+40℃);
相對濕度:日平均不大于95 %,月平均不大于90 %(25℃);
風速:不大于35米 / 秒;
污穢等級為III級;
瓷套爬距為1050mm(1320mm)(公稱爬電比距不低于25 mm / kV)。
日照:0.1w/cm2;
覆冰:10mm(MAX)
地震條件:垂直加速度0.3g;
水平加速度0.15g(max)沒有易燃物質、爆炸危險、化學腐蝕及劇烈振動的場合。
高原型4000米;
環(huán)境溫度:-30℃—+40℃(特殊要求-40℃—+40℃);
相對濕度:日平均不大于95 %,月平均不大于90 %(25℃);
風速:不大于35米 / 秒;
污穢等級為III級;
瓷套爬距為1050mm(1320mm)(公稱爬電比距不低于25 mm / kV)。
日照:0.1w/cm2;
覆冰:10mm(MAX)
地震條件:垂直加速度0.3g;
水平加速度0.15g(max)沒有易燃物質、爆炸危險、化學腐蝕及劇烈振動的場合。
3.主要技術參數:
|
序號
|
名 稱
|
單 位
|
數 據
|
||||
|
1
|
額定電壓
|
kV
|
40.5
|
||||
|
2
|
最高電壓
|
kV
|
40.5
|
||||
|
3
|
額定絕
緣水平
|
雷電沖擊耐壓(全波峰值)
|
kV
|
200*/215(斷口)注:標準化185 kV
|
|||
|
工頻耐壓(1分鐘)
|
kV
|
95/118(斷口)
|
|||||
|
4
|
額定電流
|
A
|
1600/2000
|
1600/2000/2500/3150
|
|||
|
5
|
機械壽命
|
次
|
5000
|
||||
|
6
|
六氟化硫氣體額定壓力(20℃時表壓)
|
MPa
|
0.40
|
0.50
|
|||
|
7
|
閉鎖壓力(20℃時表壓)
|
MPa
|
0.3
|
0.40
|
|||
|
8
|
最抵使用環(huán)境溫度
|
℃
|
-40
|
-30
|
|||
|
9
|
額定短路開斷電流
|
kV
|
20
|
25
|
25
|
31.5
|
|
|
10
|
額定短路關合電流(峰值)
|
kV
|
50
|
63
|
63
|
80
|
|
|
11
|
額定短時耐受電流(熱穩(wěn)定電流)
|
kV
|
20
|
25
|
25
|
31.5
|
|
|
12
|
額定峰值耐受電流(動穩(wěn)定電流)
|
kV
|
50
|
63
|
63
|
80
|
|
|
13
|
額定失步開斷電流
|
kV
|
5
|
6.3
|
6.3
|
8
|
|
|
14
|
額定短路開斷電流下的累計開斷次數
|
次
|
20
|
||||
|
15
|
額定短路持續(xù)時間
|
S
|
4
|
||||
|
16
|
合閘時間(額定操作電壓下)
|
S
|
≤0.1
|
||||
|
17
|
分閘時間(額定操作電壓下)
|
S
|
≤0.06
|
||||
|
18
|
額定操作順序
|
|
分-03s—合分
-180s—合分
|
||||
|
19
|
額定開合單個電容器組電流
|
A
|
400
|
||||
|
20
|
年漏氣率
|
% / 年
|
≤1
|
||||
|
21
|
六氟化硫氣體水份含量(20℃時)
|
uL/L
|
≤150
|
||||
|
22
|
配CT14型彈簧操動機構的額定操作電壓
|
|
AC/DC:380/220V/110V
|
||||
|
合閘線圈、分閘線圈電壓
|
V
|
交流:220 380
直流:48 110 220
|
|||||
|
儲能電機電壓
|
V
|
交流:220
直流:220/110
|
|||||
|
23
|
六氟化硫氣體重量
|
Kg
|
5
|
||||
|
24
|
斷路器(包括操動機構)重量
|
kg
|
1000
|
||||
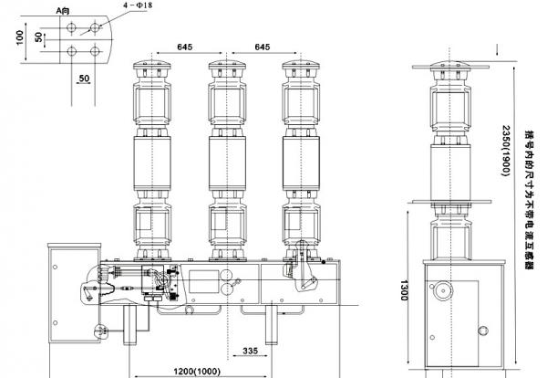
4.產品外形尺寸圖:

推薦資訊 / Recommended News
- 2022-08-24 持久淺談真空斷路器的理倫
- 2022-08-24 持久淺淡真空斷路器
- 2022-08-24 智能真空斷路器的技術問題解答
- 2022-08-24 ZW32真空斷路器核心作用
- 2022-08-24 真空斷路器比較難處理的問題
- 2022-08-24 高壓真空斷路器的維護安裝
- 2022-07-23 真空斷路器壽命是哪些因素影響的
- 2022-07-23 真空斷路器跳閘次數多有沒有影響
- 2022-07-23 真空斷路器試驗過程中的事項
- 2022-07-23 真空斷路器原則和功能的研究范圍
樂清市持久電氣有限公司
收藏本站
聯(lián)系持久







